Référence : 1858
Calculette
Partager
Maison en pierres 137 m² hab, 4 CHS, terrain 2256 m² aux portes de BERGERAC
Description de l'offre
A VENDRE – Maison en pierres parfaitement bien entretenue Un emplacement idéal, entre nature et commodités ! Vous cherchez un cadre de vie paisible, familial et proche de tout ? Cette charmante maison en pierres, parfaitement entretenue et rénovée avec soin au fil des années, vous attend à moins de 6 kms du centre-ville de Bergerac et de toutes les commodités : écoles maternelles, primaires, collèges, lycées, commerces… Les atouts : Maison de plain-pied avec un étage indépendant, parfait pour un adolescent ou un espace de travail autonome. Beaux volumes et agencement fonctionnel. Environnement calme et privilégié, beau parc de plus de 2200 m² propice à la vie de famille. Piscine à rénover (ou non selon vos envies). Terrasses ensoleillées pour profiter pleinement des beaux jours. Terrain arboré avec un verger Grand espace de stationnement, garage et atelier. Un vrai havre de paix, à deux pas de la ville. Les informations sur les risques auxquels ce bien est exposé sont disponibles sur le site Géorisques : www.georisques.gouv.fr ».
Les informations sur les risques auxquels ce bien est exposé sont disponibles sur le site Géorisques
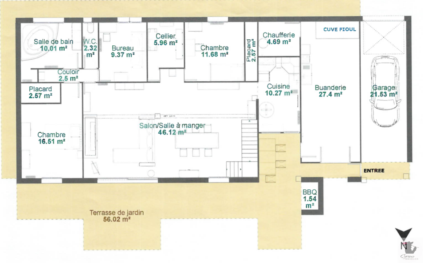
Descriptif du bien
- Code postal : 24100
- Surface habitable (m²) : 137,56 m²
- surface terrain : 2 256 m²
- Surface loi Carrez (m²) : 137 m²
- Nombre de chambre(s) : 4
- Nombre de pièces : 5
- Nombre de niveaux : 1
- Nb de salle de bains : 1
- Nb de salle d'eau : 1
- Cuisine : AMERICAINE
- Type de cuisine : SEMI-EQUIPEE
- Mode de chauffage : Bois, Fioul
- Type de chauffage : Cheminée, TRAD_TYPE_CHAUFF_CHAUDIERE
- Format de chauffage : Individuel, Central
- Terrasse : OUI
- Nombre de garage : 2
- Exposition : SUD
- Année de construction : 1900
- Quartier : Bergerac, Bergerac Centre Rive droite
- Terrain arboré : OUI
- Copropriété : NON
- Prix de vente : 197 000 €
- Les honoraires d'agence seront intégralement à la charge du vendeur
- Taxe foncière annuelle : 2 762 €
La ville de Bergerac (24100)
Nous Contacter
Afficher le téléphone 05 53 58 79 18Les informations recueillies sur ce formulaire sont enregistrées dans un fichier informatisé par La Boite Immo pour la gestion de la clientèle/prospects de CyranoImmobilier.
Elles sont conservées jusqu'à demande de suppression et sont destinées à CyranoImmobilier.
Conformément à la loi « informatique et libertés », vous pouvez exercer votre droit d'accès aux données vous concernant et les faire rectifier en contactant CyranoImmobilier.
Nous vous informons de l’existence de la liste d'opposition au démarchage téléphonique « Bloctel », sur laquelle vous pouvez vous inscrire ici : https://conso.bloctel.fr/
Ce site est protégé par reCAPTCHA, les Politiques de Confidentialité et les Conditions d'Utilisation de Google s'appliquent.
