Référence : 1925
Calculette
Partager
Maison de plain-pied avec jardin – Idéale première acquisition – Bergerac rive gauche
Description de l'offre
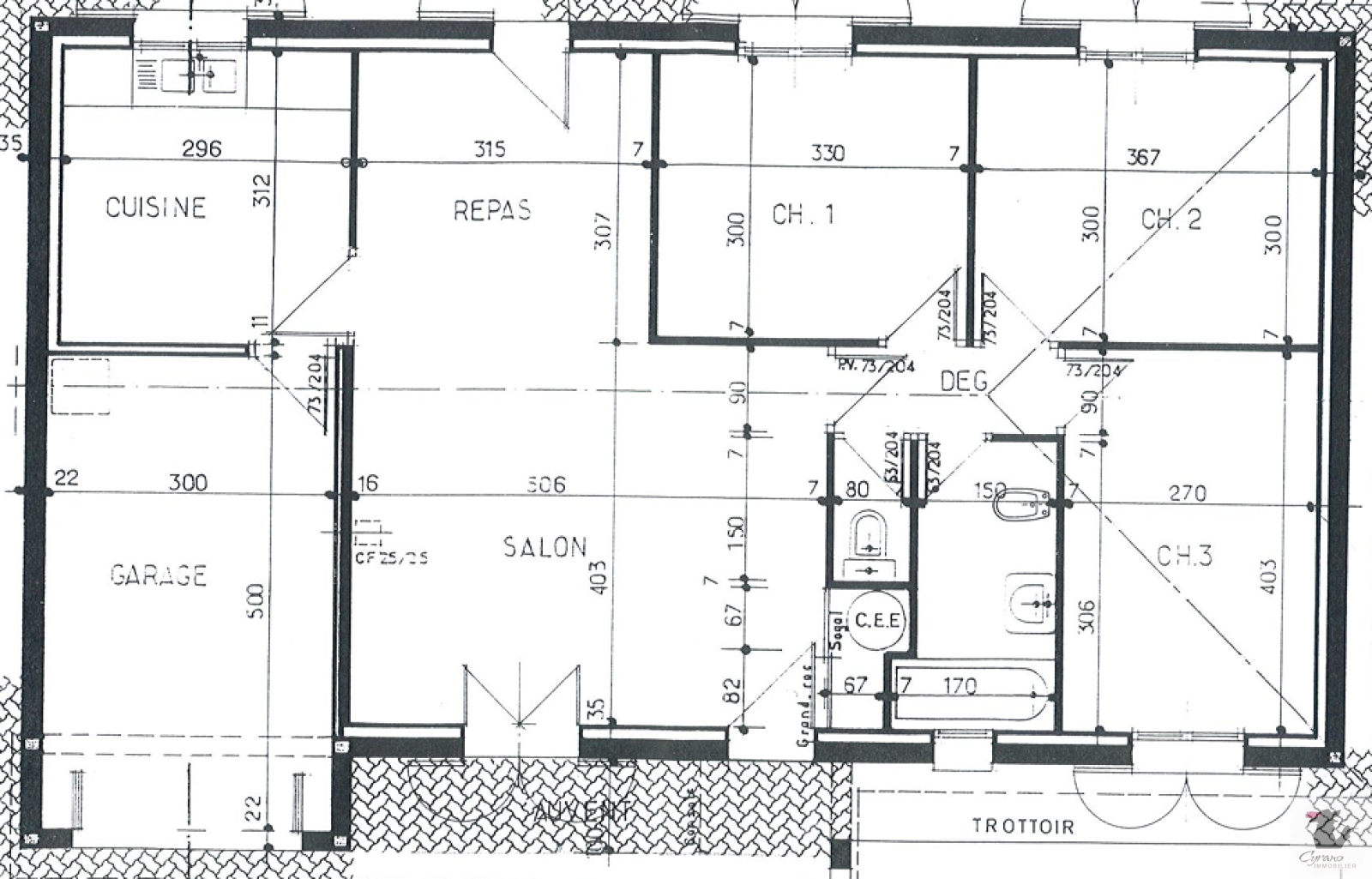
Située rive gauche de Bergerac, dans un quartier résidentiel calme, cette maison de plain-pied d’environ 80 m² habitables constitue une opportunité idéale pour un premier achat.
La maison se compose de 5 pièces, dont 3 chambres, offrant une organisation simple et fonctionnelle, parfaitement adaptée à une vie de famille ou à un premier projet immobilier. La cuisine est séparée, permettant de bien distinguer les espaces de vie. La salle d’eau est équipée d’une douche à l’italienne, les WC sont indépendants.
Un garage attenant de 15 m² vient compléter l’ensemble.
Implantée sur un terrain clos de 693 m², la maison offre un extérieur agréable, facile à entretenir, idéal pour profiter des beaux jours.
La situation permet un accès rapide aux écoles, collège et lycée, un vrai atout pour une installation durable.
Contact: Claire CORBIN immatriculée au RCS de Bergerac N° 988 904 660 - claire.corbin.immo@gmail.com - 06 10 80 67 91
"Les informations sur les risques auxquels ce bien sont soumis sont disponibles sur www.georisques.gouv.fr"
Les informations sur les risques auxquels ce bien est exposé sont disponibles sur le site Géorisques
Descriptif du bien
- Code postal : 24100
- Surface habitable (m²) : 80 m²
- surface terrain : 693 m²
- Surface loi Carrez (m²) : 80,46 m²
- Nombre de chambre(s) : 3
- Nombre de pièces : 5
- Nombre de niveaux : 1
- Nb de salle de bains : 1
- Nb de salle d'eau : 1
- Cuisine : SEPAREE
- Terrasse : NON
- Nombre de garage : 1
- Nombre de parking : 1
- Année de construction : 2000
- Quartier : BERGERAC RIVE GAUCHE
- Terrain piscinable : OUI
- Copropriété : NON
- Prix de vente : 155 000 €
- Les honoraires d'agence seront intégralement à la charge du vendeur
- Taxe foncière annuelle : 1 235 €
Montant estimé des dépenses annuelles d'énergie pour un usage standard est compris entre 1 420 € et 1 970 € . Prix moyens des énergies indexés sur les années 2021, 2022 et 2023 (abonnements compris).
La ville de Bergerac (24100)
Nous Contacter
Afficher le téléphone 05 53 58 79 18Les informations recueillies sur ce formulaire sont enregistrées dans un fichier informatisé par La Boite Immo pour la gestion de la clientèle/prospects de CyranoImmobilier.
Elles sont conservées jusqu'à demande de suppression et sont destinées à CyranoImmobilier.
Conformément à la loi « informatique et libertés », vous pouvez exercer votre droit d'accès aux données vous concernant et les faire rectifier en contactant CyranoImmobilier.
Nous vous informons de l’existence de la liste d'opposition au démarchage téléphonique « Bloctel », sur laquelle vous pouvez vous inscrire ici : https://conso.bloctel.fr/
Ce site est protégé par reCAPTCHA, les Politiques de Confidentialité et les Conditions d'Utilisation de Google s'appliquent.
